Villa in vendita a Capo d'Orlando (ME)

Rif: 7015
Condividi Linkedin Whatsapp Stampa
€ 320.000
Villa
112 Mq
4 Vani
Classe energetica A1
3 Camere
2 Bagni
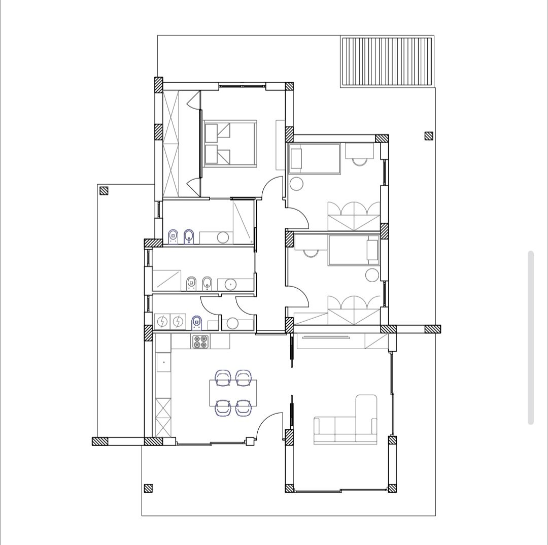
Scopri la tua nuova casa di prossima realizzazione situata su una panoramica collina alle spalle del paese di Capo d'Orlando, dove bellezza naturale, paesaggistica e modernità della struttura si fondono armoniosamente. Questa casa singola, è stata ideata e progettata con cura meticolosa per i dettagli e la qualità, offrendo ambienti accoglienti e moderni su un unico piano.
La casa di mq. 90 presenta una zona pranzo-soggiorno con angolo cottura, tre camere da letto, doppi servizi e una comoda lavanderia.
Il progetto interno, compresa la superficie, potrà essere modificato in base alle proprie necessità. All'esterno, potrai goderti il portico scoperto di 22 mq che può essere recuperato ed accorpato alla zona giorno e un giardino esclusivo di circa 800 mq, perfetto per momenti di relax all'aperto che potrai attrezzare in base ai tuoi desideri.
Personalizza i materiali, gli accessori e i pagamenti secondo le tue esigenze.
Non perdere l'opportunità di vivere in una casa di nuova costruzione dove la natura regna incontaminata, dove la luce ed il calore del sole sono presenti costantemente, dove potrai avere eleganza e praticità in una delle località più affascinanti della Sicilia!

Dettaglio immobile

Contratto Vendita
Rif 7015
Prezzo € 320.000
Provincia Messina
Comune Capo d'Orlando
Indirizzo Contrada Catutè
Superficie 112 mq
Vani 4
Camere 3
Bagni 2
Classe energetica A1 (DL 90/2013)
EPgl,nren 175 kwh/m2 anno
Condizioni nuova costruzione
Anno di costruzione 2025
Ascensore no
Cucina angolo cottura

Consistenze

Descrizione Superficie Sup. comm.
Principali
Immobile - piano terra 90 Mq 90 Mqc
Esterno - piano terra 22 Mq 22 Mqc
Totale 112 Mqc

Planimetrie

Richiedi maggiori informazioni

Autorizzazione al trattamento dei dati personali+
Dichiaro di aver letto l'informativa sulla privacy ed accetto le condizioni d'utilizzo del servizio.
Riempi il campo con il codice riportato nell'immagine*
Codice Captcha
Chiamaci Contattaci