Casa singola in vendita ad Alcara Li Fusi

Alcara li Fusi (Messina)

Rif: IMMO-109303823
Condividi Linkedin Whatsapp Stampa
€ 185.000
Terratetto
240 Mq
8 Vani
Classe energetica G
3 Camere
2 Bagni
Nel comune di Alcara Li Fusi, in provincia di Messina, proponiamo una casa singola in vendita su più livelli.
L'immobile è composto da:

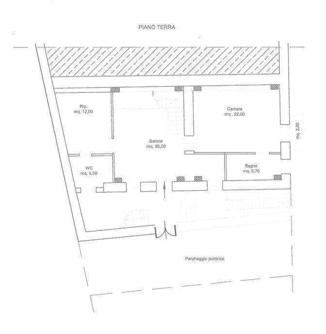
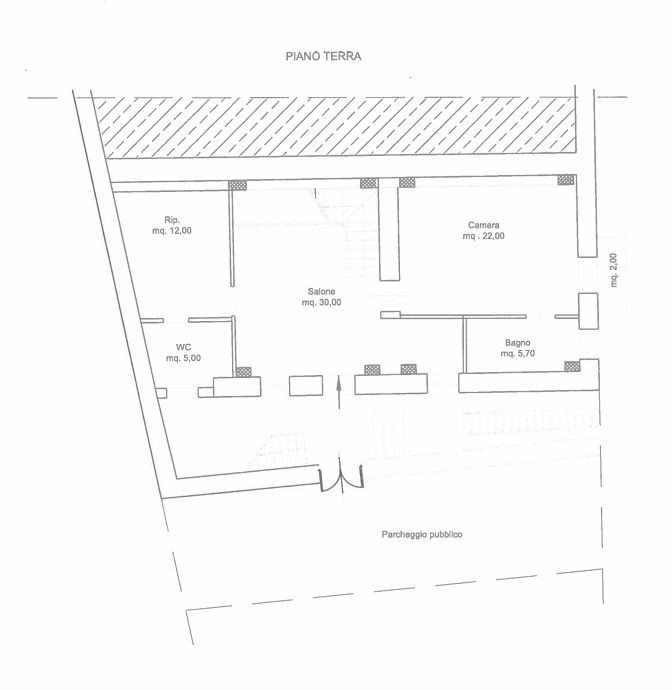
- Piano terra mq 90: salone, camera matrimoniale, due bagni e ripostiglio oltre balconcino;
- Piano primo mq 70: salone, due camere di cui una con cabina armadio, ripostiglio e bagno oltre mq  di balconi;
- Piano secondo mq 50: cucina soggiorno oltre terrazzo di mq 55;
- Piano seminterrato mq 30: magazzino;

Dettaglio immobile

Contratto Vendita
Rif IMMO-109303823
Prezzo € 185.000
Provincia Messina
Comune Alcara li Fusi
Indirizzo Via Francesco Crispi 34
Superficie 240 mq
Vani 8
Camere 3
Bagni 2
Classe energetica G (DL 192/2005)
EPI 175 kwh/m2 anno
Riscaldamento autonomo
Condizioni abitabile
Ascensore no
Cantina si
Cucina abitabile
Balcone si
Terrazza si

Consistenze

Descrizione Superficie Sup. comm.
Principali
Immobile - piano terra 90 Mq 90 Mqc
Immobile - 1° piano 70 Mq 70 Mqc
Immobile - 2° piano 50 Mq 50 Mqc
Altro - seminterrato 30 Mq 30 Mqc
Totale 240 Mqc

Planimetrie

Richiedi maggiori informazioni

Autorizzazione al trattamento dei dati personali+
Dichiaro di aver letto l'informativa sulla privacy ed accetto le condizioni d'utilizzo del servizio.
Riempi il campo con il codice riportato nell'immagine*
Codice Captcha
Chiamaci Contattaci