Casa singola a Mirto

Mirto (Messina)

Rif: IMMO-108760739
Condividi Linkedin Whatsapp Stampa
€ 65.000
Terratetto
208 Mq
4 Vani
Giardino
Classe energetica G
2 Camere
1 bagno
Scopri questa casa indipendente nel comune di Mirto, a soli 5 minuti da Rocca di Capri Leone.
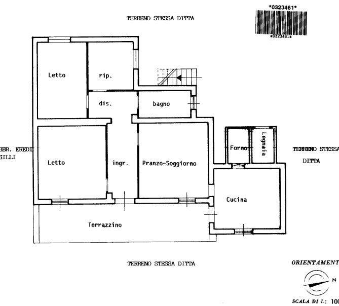
Con una superficie di 129 mq, l'immobile offre un'accogliente disposizione con ingresso, due camere da letto, un ampio pranzo-soggiorno, cucina e bagno. Ogni angolo è pensato per garantire comfort e funzionalità, perfetto per famiglie o chi cerca un rifugio tranquillo.

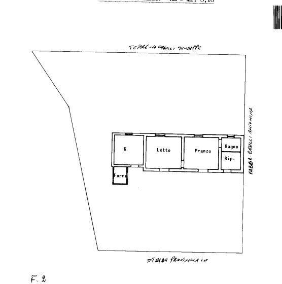
Il terrazzo di 25 mq è ideale per godere di momenti di relax all'aria aperta, mentre il terreno di 650 mq regala una vista mozzafiato sulla valle circostante. Inclusa nella vendita c'è anche una struttura diruta di 79 mq, che offre ulteriori possibilità di sviluppo o personalizzazione.

L'immobile presenta margini di miglioramento per chi desidera personalizzarlo.
Non perdere l'occasione di visitare un immobile situato nel cuore della natura nebroidea!

Dettaglio immobile

Contratto Vendita
Rif IMMO-108760739
Prezzo € 65.000
Provincia Messina
Comune Mirto
Indirizzo Contrada San Tommaso
Superficie 208 mq
Vani 4
Camere 2
Bagni 1
Classe energetica G (DL 90/2013)
EPgl,nren 175 kwh/m2 anno
Riscaldamento inesistente
Condizioni da ristrutturare
Ascensore no
Giardino
Cucina abitabile
Balcone si
Terrazza si

Consistenze

Descrizione Superficie Sup. comm.
Principali
Immobile - piano terra 208 Mq 208 Mqc
Totale 208 Mqc

Planimetrie

Richiedi maggiori informazioni

Autorizzazione al trattamento dei dati personali+
Dichiaro di aver letto l'informativa sulla privacy ed accetto le condizioni d'utilizzo del servizio.
Riempi il campo con il codice riportato nell'immagine*
Codice Captcha
Chiamaci Contattaci