**Appartamento Trilocale Fronte Mare a Capo d'Orlando**

Capo d'Orlando (Messina)

Rif: IMMO-108686233
Condividi Linkedin Whatsapp Stampa
€ 178.000
Appartamento
65 Mq
3 Vani
Classe energetica G
2 Camere
1 bagno
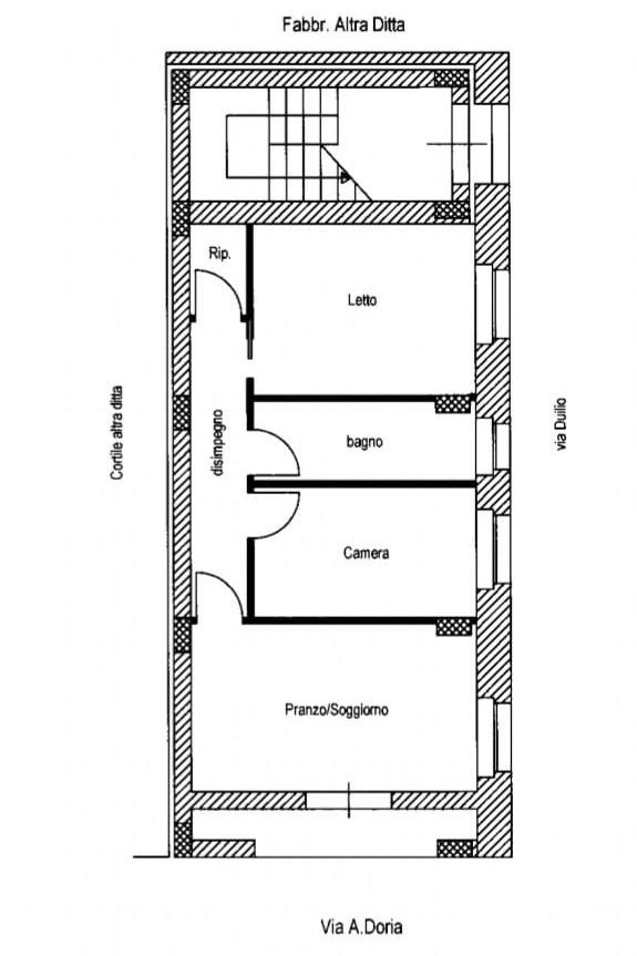
Scopri questo interessante trilocale situato sul lungomare A. Doria di Capo d'Orlando, perfetto per chi cerca una residenza principale o una casa vacanze. Questo appartamento al piano terra offre una superficie di circa 65 mq, con un'accogliente pranzo soggiorno dotato di angolo cottura, una camera matrimoniale, una cameretta, un bagno ed un pratico ripostiglio.

La proprietà vanta anche una un piccolo balconcino, ideale per godersi la brezza marina e il panorama mozzafiato.
L'immobile si presente in ottimo stato e pronto per essere abitato.
Non perdere l'opportunità di vivere a pochi passi dal mare in una delle località più affascinanti della Sicilia!

Dettaglio immobile

Contratto Vendita
Rif IMMO-108686233
Prezzo € 178.000
Provincia Messina
Comune Capo d'Orlando
Indirizzo Via Caio Duilio 2
Superficie 65 mq
Vani 3
Camere 2
Bagni 1
Classe energetica G (DL 192/2005)
EPI 175 kwh/m2 anno
Riscaldamento autonomo
Condizioni abitabile
Arredato si
Ascensore no
Cucina abitabile

Consistenze

Descrizione Superficie Sup. comm.
Principali
Immobile - piano terra 65 Mq 65 Mqc
Totale 65 Mqc

Planimetrie

Richiedi maggiori informazioni

Autorizzazione al trattamento dei dati personali+
Dichiaro di aver letto l'informativa sulla privacy ed accetto le condizioni d'utilizzo del servizio.
Riempi il campo con il codice riportato nell'immagine*
Codice Captcha
Chiamaci Contattaci