Centralissimo appartamento a Capo d'Orlando

Capo d'Orlando (Messina)

Rif: IMMO-105292121
Condividi Linkedin Whatsapp Stampa
€ 315.000
Appartamento
146 Mq
5 Vani
Classe energetica G
3 Camere
2 Bagni
Ascensore
Nel comune di Capo d'Orlando, in via Francesco Lo Sardo, proponiamo in vendita un ampio appartamento sito al secondo piano con ascensore.

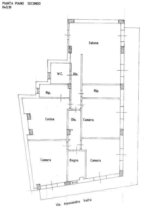
L'immobile di mq 146 è composto da un ampio salone, corridoio, tre camere, due bagni, cucina abitabile e due ripostigli oltre balconi di mq 33.

Questo luminoso appartamento è situato a pochi passi dal cuore del paese ed in zona ben servita.

Dettaglio immobile

Contratto Vendita
Rif IMMO-105292121
Prezzo € 315.000
Provincia Messina
Comune Capo d'Orlando
Indirizzo Via Francesco lo Sardo 38
Superficie 146 mq
Vani 5
Camere 3
Bagni 2
Classe energetica G (DL 90/2013)
EPgl,nren 175 kwh/m2 anno
Piano 2 / 4
Riscaldamento autonomo
Condizioni abitabile
Ascensore si
Cucina abitabile
Balcone si

Consistenze

Descrizione Superficie Sup. comm.
Principali
Immobile - 2° piano 146 Mq 146 Mqc
Totale 146 Mqc

Planimetrie

Richiedi maggiori informazioni

Autorizzazione al trattamento dei dati personali+
Dichiaro di aver letto l'informativa sulla privacy ed accetto le condizioni d'utilizzo del servizio.
Riempi il campo con il codice riportato nell'immagine*
Codice Captcha
Chiamaci Contattaci