Centralissimo appartamento con terrazza

Capo d'Orlando (Messina)

Rif: IMMO-103681462
Condividi Linkedin Whatsapp Stampa
€ 395.000
Appartamento
143 Mq
4 Vani
Classe energetica G
1 camera
2 Bagni
Ascensore
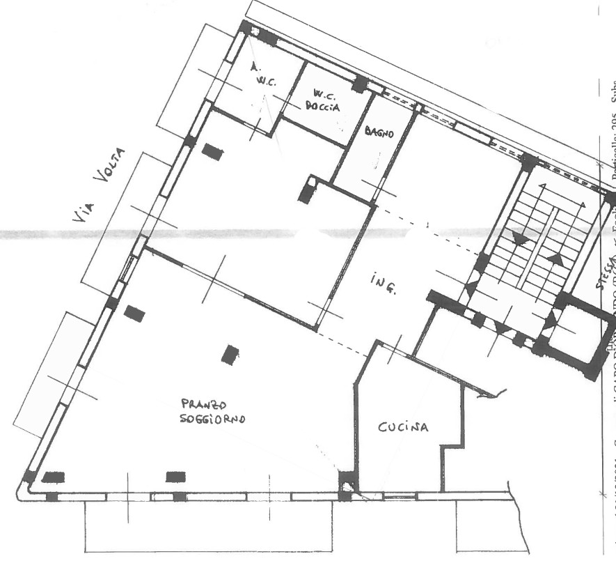
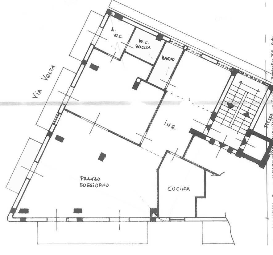
Nel comune di Capo d'Orlando, in via Amendola ad angolo con via Volta, proponiamo in vendita un ampio e luminoso appartamento di mq 143 oltre balconi.

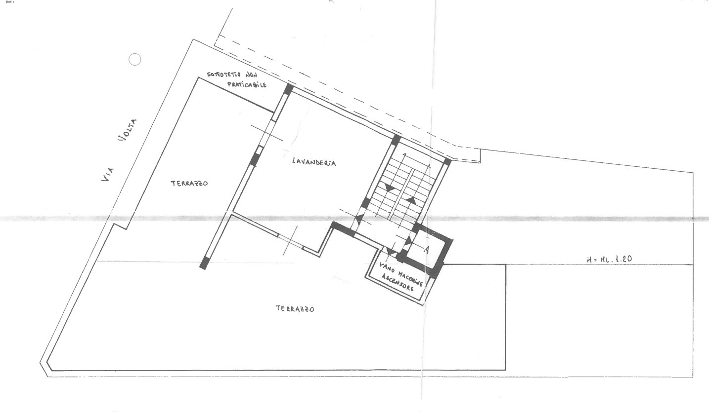
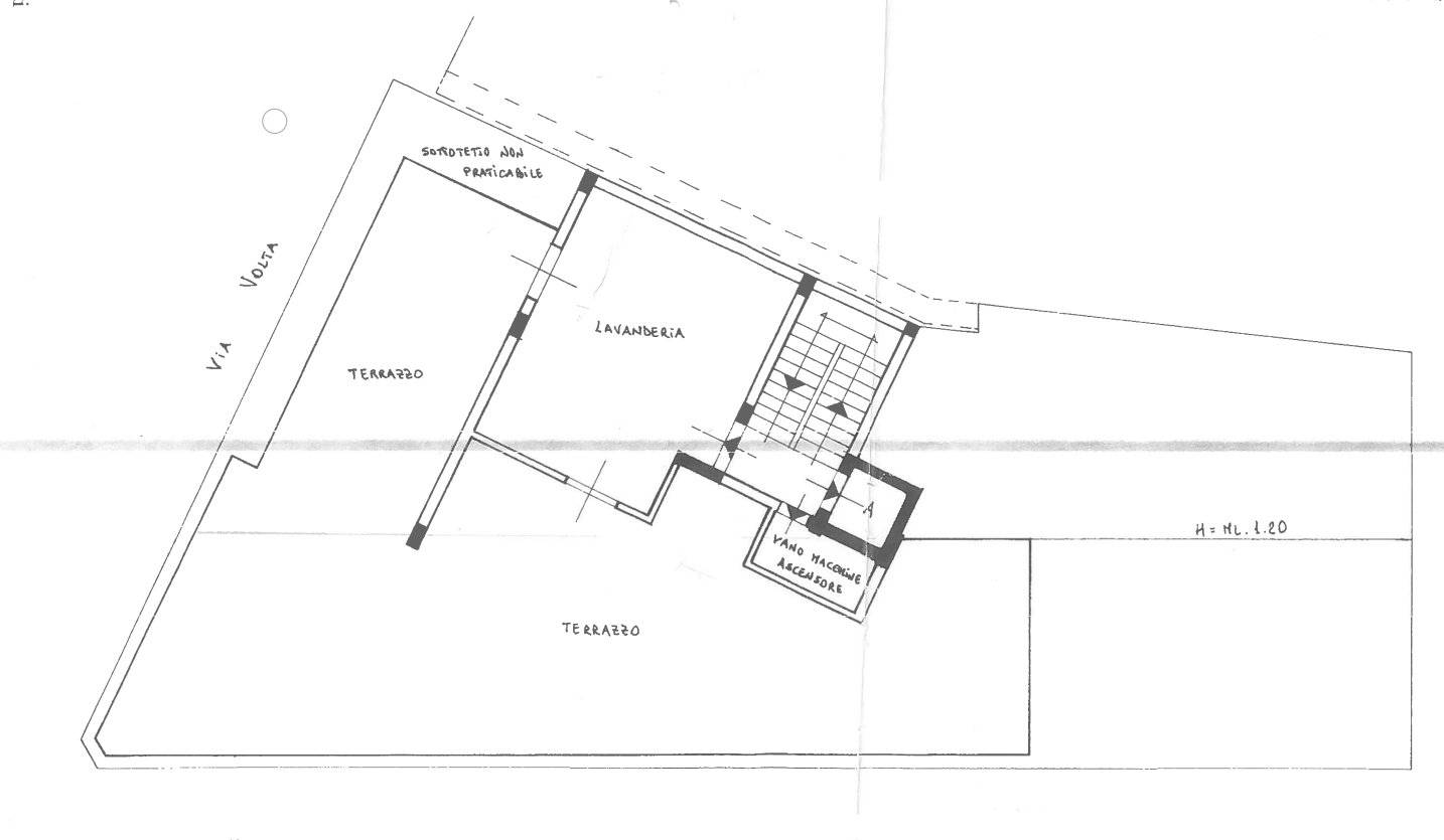
L'appartamento è situato al terzo piano ed è composto da ingresso, cucina, ampio soggiorno, camera matrimoniale e due bagni; all'ingresso è situata una scala interna che collega l'appartamento al piano quarto piano composto da un ampio terrazzo di mq 100 ed un vano lavanderia di mq 40.

L'immobile è situato nel cuore ed a pochi passi dal mare.

Dettaglio immobile

Contratto Vendita
Rif IMMO-103681462
Prezzo € 395.000
Provincia Messina
Comune Capo d'Orlando
Indirizzo Via Giovanni Amendola 27A
Superficie 143 mq
Vani 4
Camere 1
Bagni 2
Classe energetica G (DL 90/2013)
EPgl,nren 175 kwh/m2 anno
Piano 3 / 4
Riscaldamento autonomo
Condizioni abitabile
Ascensore si
Cucina abitabile
Balcone si
Terrazza si

Consistenze

Descrizione Superficie Sup. comm.
Principali
Immobile - 3° piano 143 Mq 143 Mqc
Totale 143 Mqc

Planimetrie

Richiedi maggiori informazioni

Autorizzazione al trattamento dei dati personali+
Dichiaro di aver letto l'informativa sulla privacy ed accetto le condizioni d'utilizzo del servizio.
Riempi il campo con il codice riportato nell'immagine*
Codice Captcha
Chiamaci Contattaci