Porzione di Fabbricato con terreno edificabile

Castell'Umberto (Messina)

Rif: IMMO-101586207
Condividi Linkedin Whatsapp Stampa
€ 130.000
Terratetto
168 Mq
5 Vani
Classe energetica G
1 camera
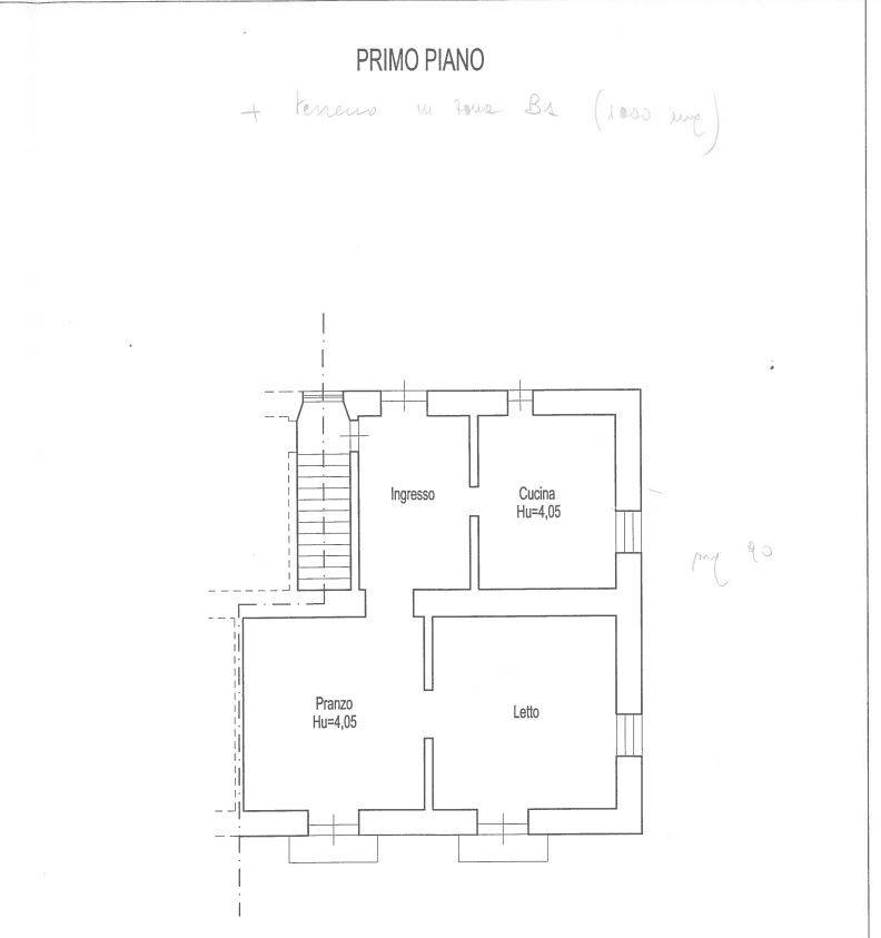
Nel comune di Castell'Umberto proponiamo in vendita una porzione di fabbricato situato all'ingresso del paese coì suddiviso:

- Piano Terra di mq 78 costituito da due vani deposito;
- Piano Primo di mq 90 costituito da ingresso, cucina, sala da pranzo, e camera matrimoniale oltre balconi;

E' compreso nella vendita un terreno edificabile di mq 1000 circa.

Dettaglio immobile

Contratto Vendita
Rif IMMO-101586207
Prezzo € 130.000
Provincia Messina
Comune Castell'Umberto
Indirizzo Strada Statale Randazzo-capo d'Orlando
Superficie 168 mq
Vani 5
Camere 1
Classe energetica G (DL 90/2013)
EPgl,nren 175 kwh/m2 anno
Riscaldamento inesistente
Condizioni da ristrutturare
Ascensore no
Cucina abitabile
Balcone si

Consistenze

Descrizione Superficie Sup. comm.
Principali
Immobile - 1° piano 90 Mq 90 Mqc
Immobile - piano terra 78 Mq 78 Mqc
Totale 168 Mqc

Planimetrie

Richiedi maggiori informazioni

Autorizzazione al trattamento dei dati personali+
Dichiaro di aver letto l'informativa sulla privacy ed accetto le condizioni d'utilizzo del servizio.
Riempi il campo con il codice riportato nell'immagine*
Codice Captcha
Chiamaci Contattaci