Villa Panoramica a Naso (Me)

Naso (Messina)

Rif: IMMO-101038901
Condividi Linkedin Whatsapp Stampa
€ 390.000
Villa
324 Mq
11 Vani
Giardino
Classe energetica G
3 Camere
4 Bagni
Garage
Nel comune di Naso, in contrada Maina, proponiamo in vendita una splendida villa con vista mare.
La villa è situata a circa 15 minuti dalle splendide spiagge di Capo d'Orlando ed è circondata da 1.575 mq di terreno.
Sia l'esterno, che l'interno si distinguono per la bellezza e la cura con la quale sono stati realizzati.

L'immobile si sviluppa su tre livelli così suddivisi:
Piano seminterrato di mq 130 costituito da un garage, due depositi , ripostiglio, bagno e cantina;
Piano Terra di mq 122 costituito da cucina, soggiorno, tre camere e tre bagni oltre balconi di mq 28 e tettoia coperta di mq 8;
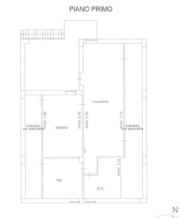
Piano Primo di mq 72 costituito da uno splendido terrazzo vista mare di mq 21, lavanderia, ripostiglio, bagno e stireria;

Dettaglio immobile

Contratto Vendita
Rif IMMO-101038901
Prezzo € 390.000
Provincia Messina
Comune Naso
Indirizzo Contrada Maina 282
Superficie 324 mq
Vani 11
Camere 3
Bagni 4
Classe energetica G (DL 90/2013)
EPgl,nren 175 kwh/m2 anno
Condizioni ottime condizioni
Ascensore no
Garage singolo si
Cantina si
Parcheggio si
Giardino
Cucina abitabile
Balcone si
Terrazza si
Mansarda si

Consistenze

Descrizione Superficie Sup. comm.
Principali
Immobile - piano terra 122 Mq 122 Mqc
Immobile - seminterrato 130 Mq 130 Mqc
Immobile - 1° piano 72 Mq 72 Mqc
Totale 324 Mqc

Planimetrie

Richiedi maggiori informazioni

Autorizzazione al trattamento dei dati personali+
Dichiaro di aver letto l'informativa sulla privacy ed accetto le condizioni d'utilizzo del servizio.
Riempi il campo con il codice riportato nell'immagine*
Codice Captcha
Chiamaci Contattaci