Ampio magazzino a Capo d'Orlando

Capo d'Orlando (Messina)

Rif: IMMO-98023878
Condividi Linkedin Whatsapp Stampa
Tratt. riservata
Vendita
Magazzino
240 Mq
Classe energetica Non soggetto
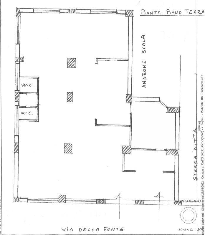
In via della Fonte, in posizione centralissima, proponiamo in vendita un ampio magazzino sito al piano terra di mq 240.

L'immobile ha un ottima esposizione essendo dotato di 4 vetrine su strada. Il magazzino è prospiciente su Piazza Leonardo da Vinci.

Dettaglio immobile

Contratto Vendita
Rif IMMO-98023878
Prezzo Tratt. riservata
Provincia Messina
Comune Capo d'Orlando
Indirizzo Via della Fonte 12
Superficie 240 mq
Classe energetica Non soggetto
Condizioni abitabile
Ascensore no

Consistenze

Descrizione Superficie Sup. comm.
Principali
Magazzino - piano terra 240 Mq 240 Mqc
Totale 240 Mqc

Planimetrie

Richiedi maggiori informazioni

Autorizzazione al trattamento dei dati personali+
Dichiaro di aver letto l'informativa sulla privacy ed accetto le condizioni d'utilizzo del servizio.
Riempi il campo con il codice riportato nell'immagine*
Codice Captcha
Chiamaci Contattaci