Villa in vendita a Capo d'Orlando (ME)

Rif: 8000
Condividi Linkedin Whatsapp Stampa
€ 260.000
Villa
221 Mq
3 Vani
Giardino
Classe energetica G
3 Camere
3 Bagni
Garage
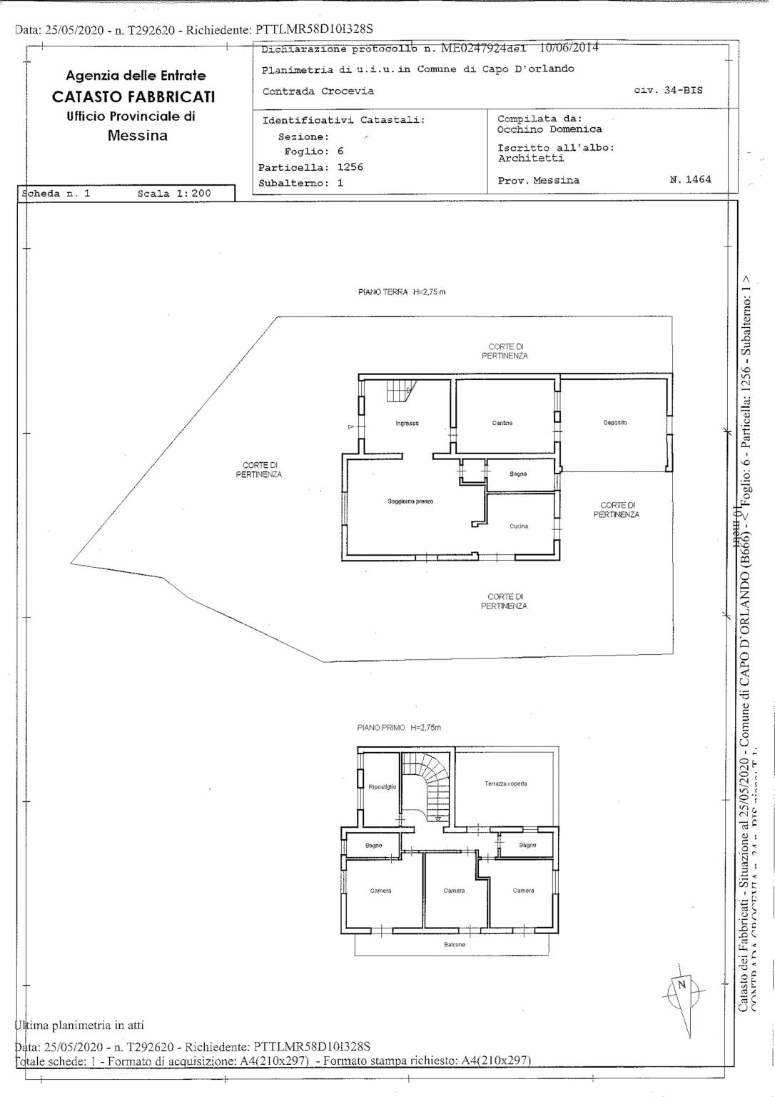
Benvenuti in questa splendida villa su due piani, un vero gioiello incastonato tra il mare e le meravigliose Isole Eolie. Al piano terra, troverai un ampio spazio di 123 mq che include un ingresso accogliente, una zona pranzo-soggiorno luminosa, una cucina funzionale, un bagno e una cantina.

Salendo al primo piano di 98 mq, scoprirai tre camere da letto spaziose, doppi servizi e un comodo ripostiglio.

La villa vanta una terrazza coperta di 25 mq, ideale per cene all'aperto, e balconi di 13 mq con vista mozzafiato sul mare che offrono ulteriori spazi per momenti di relax. Il terreno circostante di 1.200 mq, con meravigliosi uliveti e piante, offre infinite possibilità per creare il tuo angolo di paradiso personale. Questa proprietà è un'opportunità imperdibile per chi cerca una casa in buono stato in una location da sogno. Non perdere l'occasione di vivere in un luogo dove ogni giorno si apre con la bellezza del mare e delle isole all'orizzonte.

Dettaglio immobile

Contratto Vendita
Rif 8000
Prezzo € 260.000
Provincia Messina
Comune Capo d'Orlando
Indirizzo Contrada Crocevia
Superficie 221 mq
Vani 3
Camere 3
Bagni 3
Classe energetica G (DL 192/2005)
EPI 175 kwh/m2 anno
Condizioni abitabile
Ascensore no
Garage singolo si
Cantina si
Giardino
Cucina abitabile
Balcone 13 mq
Terrazza si

Consistenze

Descrizione Superficie Sup. comm.
Principali
Immobile - piano terra 123 Mq 123 Mqc
Immobile - 1° piano 98 Mq 98 Mqc
Accessorie
Terrazza - 1° piano 25 Mq 8 Mqc
Balcone - 1° piano 13 Mq 4 Mqc
Totale 233 Mqc

Planimetrie

Richiedi maggiori informazioni

Autorizzazione al trattamento dei dati personali+
Dichiaro di aver letto l'informativa sulla privacy ed accetto le condizioni d'utilizzo del servizio.
Riempi il campo con il codice riportato nell'immagine*
Codice Captcha
Chiamaci Contattaci